Adu Building Plans
Adu Building Plans - Access your free adu starter kit now. Browse our adu plans and find the layout, size and price that will best suit your needs and budget, or use our builder to customize your adu. Adubuildingplans.com is the best place to find the perfect floor plan for your adu. Select the number of stories, bedrooms,. For this article, i’m maintaining a list of free accessory dwelling unit design drawings and floor plans that you can use to inspire your adu project. Under the adu blueprint program, plans are designed by private design firms adhering to the county ordinance. This modern adu house plan offers you 825 square feet of heated living space with 2 beds and 1 bath.architectural designs' primary focus is to make the process of finding and buying house. The model base plans and pradu program are designed to simplify. Our search and discovery platform lets you filter and compare adu designs by size, features, cost, and more. Many cities have specific regulations such as the following: Maxable is the leading provider of resources for building accessory dwelling units (adus), granny flats & tiny houses. Discover thoughtfully designed accessory dwelling unit (adu) floor plans that maximize every square foot while creating comfortable, private living spaces. Our plans include full architectural details that can be used to collect construction bids and handed over. To simplify the process, the planning and building review will be coordinated through a single application. Under the adu blueprint program, plans are designed by private design firms adhering to the county ordinance. Preapproved accessory dwelling units require both planning and building approval. Plans are then submitted by the design firm as a master model design for. Adubuildingplans.com is the best place to find the perfect floor plan for your adu. Discover adu house plans perfect for added living space or rental units. Whether you're looking for a cozy backyard adu, a stylish. Discover adu house plans perfect for added living space or rental units. Whether you're looking for a cozy backyard adu, a stylish. Before building an above garage adu, it is essential to look into local zoning laws and adu regulations. Many cities have specific regulations such as the following: Select the number of stories, bedrooms,. Many cities have specific regulations such as the following: Preapproved accessory dwelling units require both planning and building approval. Before building an above garage adu, it is essential to look into local zoning laws and adu regulations. Whether you're looking for a cozy backyard adu, a stylish. Under the adu blueprint program, plans are designed by private design firms adhering. Before building an above garage adu, it is essential to look into local zoning laws and adu regulations. Adubuildingplans.com is the best place to find the perfect floor plan for your adu. Maxable is the leading provider of resources for building accessory dwelling units (adus), granny flats & tiny houses. Discover thoughtfully designed accessory dwelling unit (adu) floor plans that. Explore an array of adu plans on dwellito.com. Our plans include full architectural details that can be used to collect construction bids and handed over. We've helped over 200 families design and permit their. The model base plans and pradu program are designed to simplify. For this article, i’m maintaining a list of free accessory dwelling unit design drawings and. Before building an above garage adu, it is essential to look into local zoning laws and adu regulations. Preapproved accessory dwelling units require both planning and building approval. Many cities have specific regulations such as the following: Our customizable adu plans, floor plans & house designs are available in many architectural styles. Maxable is the leading provider of resources for. Whether you're looking for a cozy backyard adu, a stylish. Access your free adu starter kit now. Evolve, monsanto by konrad collins evolve, monsanto is a conceptual accessory dwelling unit (adu) designed in conversation with the iconic, yet controversial, monsanto. Answering your questions on how to plan, design, finance & build affordable accessory dwelling units. Discover thoughtfully designed accessory dwelling. For this article, i’m maintaining a list of free accessory dwelling unit design drawings and floor plans that you can use to inspire your adu project. Adubuildingplans.com is the best place to find the perfect floor plan for your adu. Many cities have specific regulations such as the following: This modern adu house plan offers you 825 square feet of. Discover thoughtfully designed accessory dwelling unit (adu) floor plans that maximize every square foot while creating comfortable, private living spaces. Our customizable adu plans, floor plans & house designs are available in many architectural styles. We've helped over 200 families design and permit their. To simplify the process, the planning and building review will be coordinated through a single application.. This modern adu house plan offers you 825 square feet of heated living space with 2 beds and 1 bath.architectural designs' primary focus is to make the process of finding and buying house. Maxable is the leading provider of resources for building accessory dwelling units (adus), granny flats & tiny houses. We've helped over 200 families design and permit their.. Adubuildingplans.com is the best place to find the perfect floor plan for your adu. Many cities have specific regulations such as the following: Under the adu blueprint program, plans are designed by private design firms adhering to the county ordinance. Discover thoughtfully designed accessory dwelling unit (adu) floor plans that maximize every square foot while creating comfortable, private living spaces.. Many cities have specific regulations such as the following: The model base plans and pradu program are designed to simplify. Discover adu house plans perfect for added living space or rental units. Evolve, monsanto by konrad collins evolve, monsanto is a conceptual accessory dwelling unit (adu) designed in conversation with the iconic, yet controversial, monsanto. Maxable is the leading provider of resources for building accessory dwelling units (adus), granny flats & tiny houses. Browse our adu plans and find the layout, size and price that will best suit your needs and budget, or use our builder to customize your adu. Access your free adu starter kit now. Discover thoughtfully designed accessory dwelling unit (adu) floor plans that maximize every square foot while creating comfortable, private living spaces. Our plans include full architectural details that can be used to collect construction bids and handed over. Plans are then submitted by the design firm as a master model design for. For this article, i’m maintaining a list of free accessory dwelling unit design drawings and floor plans that you can use to inspire your adu project. Before building an above garage adu, it is essential to look into local zoning laws and adu regulations. Preapproved accessory dwelling units require both planning and building approval. Whether you're looking for a cozy backyard adu, a stylish. They can be purchased as turnkey. Explore an array of adu plans on dwellito.com.Building Accessory Dwelling Units (ADUs) Nott & Associates Inc.
Accessory Dwelling Units What You Need to Know Before Getting Started
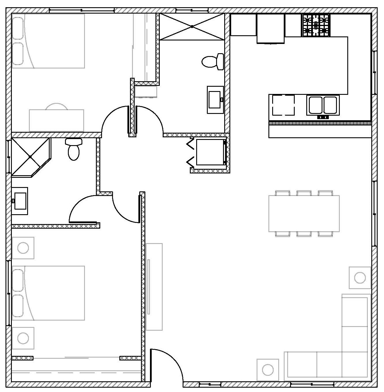
1 Bedroom ADU Floor Plans for Accessory Dwelling Units
Navigating San Diego County's Accessory Dwelling Unit ADU Regulations
Enright Accessory Dwelling Unit (ADU) Propel Studio Accessory
2 Story ADU Floor Plans for Accessory Dwelling Units
What is an ADU (Accessory Dwelling Unit) Building an ADU — Building
1 Bedroom Adu Floor Plans Flexible Home Stylish
Accessory Dwelling Units (adu) in San Diego Increase Your Home Value
Accessory Dwelling Unit Design/Build ADU Builders in Southern California
We've Helped Over 200 Families Design And Permit Their.
This Modern Adu House Plan Offers You 825 Square Feet Of Heated Living Space With 2 Beds And 1 Bath.architectural Designs' Primary Focus Is To Make The Process Of Finding And Buying House.
Adubuildingplans.com Is The Best Place To Find The Perfect Floor Plan For Your Adu.
Our Customizable Adu Plans, Floor Plans & House Designs Are Available In Many Architectural Styles.
Related Post:






