Brevard County Florida Building Permits
Brevard County Florida Building Permits - This search also applies to septic permits. For instructions visit how to register or how to schedule inspections. Check out the building code wind speed. Registered users (with an approved contractor. By using this permit data or search, you agree to accept all terms and conditions set forth anywhere on the brevard county board of county commissioners website. We'll tell you where and when it will open two winn dixie locations in brevard will be converted to aldi stores. They also review and approve building plans, enforce zoning rules, and. Registration is free and easy, no contractor license required. Bs&a software provides bs&a online as a way for municipalities to display information online and is not responsible for the content or accuracy of the data herein. Looking for building permits, zoning & inspections in brevard county, fl? Registration is free and easy, no contractor license required. A licensed contractor can register to apply for. Looking for building permits, zoning & inspections in brevard county, fl? Registered users (with an approved contractor. Registered users (with an approved contractor. Building permits are issued for new construction, alterations, additions, and changes to properties within unincorporated areas of brevard county. This site provides for the searching and retrieval of building permits from 1990 to 2002 and other permits from 1990 to 2007. Permits can be searched for by entering any of the following information: Yes, a permit is required for sheds in brevard county if they are 100 square feet or larger or if you plan to attach it to your. Enter information below to search the county's permitting database. Use the dropdown menu within the gray bar. Permits can be searched for by entering any of the following information: Bs&a software provides bs&a online as a way for municipalities to display information online and is not responsible for the content or accuracy of the data herein. For instructions visit how to register or how to schedule inspections. Registration is. Yes, a permit is required for sheds in brevard county if they are 100 square feet or larger or if you plan to attach it to your. • general search • site address • contractor. This search also applies to septic permits. Quickly find building dept phone number, directions & services. Publix is building another location in brevard. Building permits are issued for new construction, alterations, additions, and changes to properties within unincorporated areas of brevard county. Registered users (with an approved contractor. Registered users (with an approved contractor. Download required application documents for a residential new one and two family residences permit. Quickly access information about 16 building depts near you! Permits can be searched for by entering any of the following information: We'll tell you where and when it will open two winn dixie locations in brevard will be converted to aldi stores. A licensed contractor can register to apply for. Registered users (with an approved contractor. Looking for building permits, zoning & inspections in brevard county, fl? Permits can be searched for by entering any of the following information: Registered users (with an approved contractor. For instructions visit how to register or how to schedule inspections. Check out the building code wind speed. Registration is free and easy, no contractor license required. • general search • site address • contractor. Do i need a shed permit in brevard county, florida? We'll tell you where and when it will open two winn dixie locations in brevard will be converted to aldi stores. Looking for brevard county planning & development department building permits permits, zoning & inspections? Download required application documents for a residential. Brevard county has an online database called bass (brevard advanced service site) that you can use to find existing. This site provides for the searching and retrieval of building permits from 1990 to 2002 and other permits from 1990 to 2007. Permits can be searched for by entering any of the following information: If a property is the subject of. Permits can be searched for by entering any of the following information: Download required application documents for a residential new one and two family residences permit. Registration is free and easy, no contractor license required. Publix is building another location in brevard. A licensed contractor can register to apply for. For instructions visit how to register or how to schedule inspections. Registered users (with an approved contractor. This site provides for the searching and retrieval of building permits from 1990 to 2002 and other permits from 1990 to 2007. Download required application documents for a residential new one and two family residences permit. Quickly access information about 16 building depts. Frequently asked questions regarding building permits in brevard county. Use the dropdown menu within the gray bar. Registered users (with an approved contractor. Yes, a permit is required for sheds in brevard county if they are 100 square feet or larger or if you plan to attach it to your. Registration is free and easy, no contractor license required. Enter information below to search the county's permitting database. A licensed contractor can register to apply for. Building permits are issued for new construction, alterations, additions, and changes to properties within unincorporated areas of brevard county. Yes, a permit is required for sheds in brevard county if they are 100 square feet or larger or if you plan to attach it to your. For instructions visit how to register or how to schedule inspections. Quickly find building dept phone number, directions & services. How do i look up a building permit in florida? Check out the building code wind speed. By using this permit data or search, you agree to accept all terms and conditions set forth anywhere on the brevard county board of county commissioners website. Registered users (with an approved contractor. Registered users (with an approved contractor. Contractor and code enforcement and building permit records are available to the public using brevard’s advanced service site (bass). Looking for brevard county planning & development department building permits permits, zoning & inspections? Building departments in brevard county, florida create and enforce building codes to ensure that buildings are safe. Brevard county has an online database called bass (brevard advanced service site) that you can use to find existing. Publix is building another location in brevard.Brevard County Permit Application 20122025 Form Fill Out and Sign
City of Greenacres, Florida Application for Building Permit Fill Out
Broward County, Florida Uniform Building Permit Application Fill Out
In 2023, Tampa Bay Issued 27 More Residential Building Permits Than
Brevard County Map, Florida
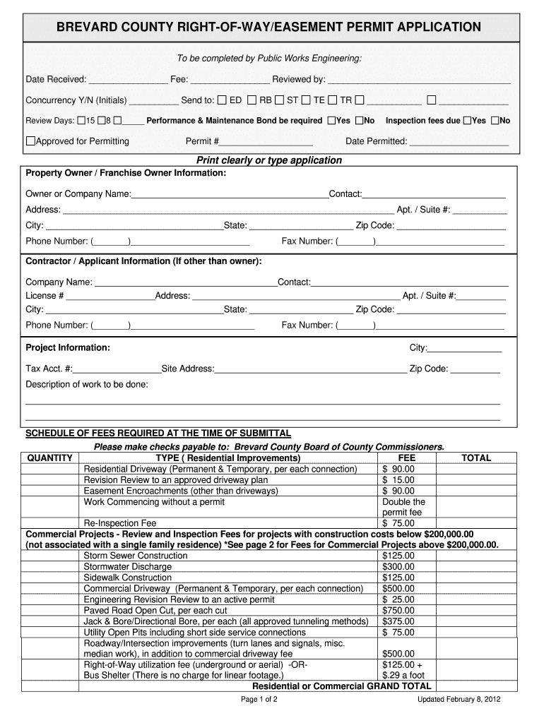
Brevard County, Florida Building Permit Application Fill Out, Sign
Fillable Online Fillable Online Brevard County Building Permit Forms
Lee County, Florida Residential Building Permit Application Fill Out
2024 Building Permit Costs Fees & Cost Calculator
Brevard County, Florida Building Permit Application Fill Out, Sign
Registration Is Free And Easy, No Contractor License Required.
• General Search • Site Address • Contractor.
Frequently Asked Questions Regarding Building Permits In Brevard County.
Looking For Building Permits, Zoning & Inspections In Brevard County, Fl?
Related Post:





