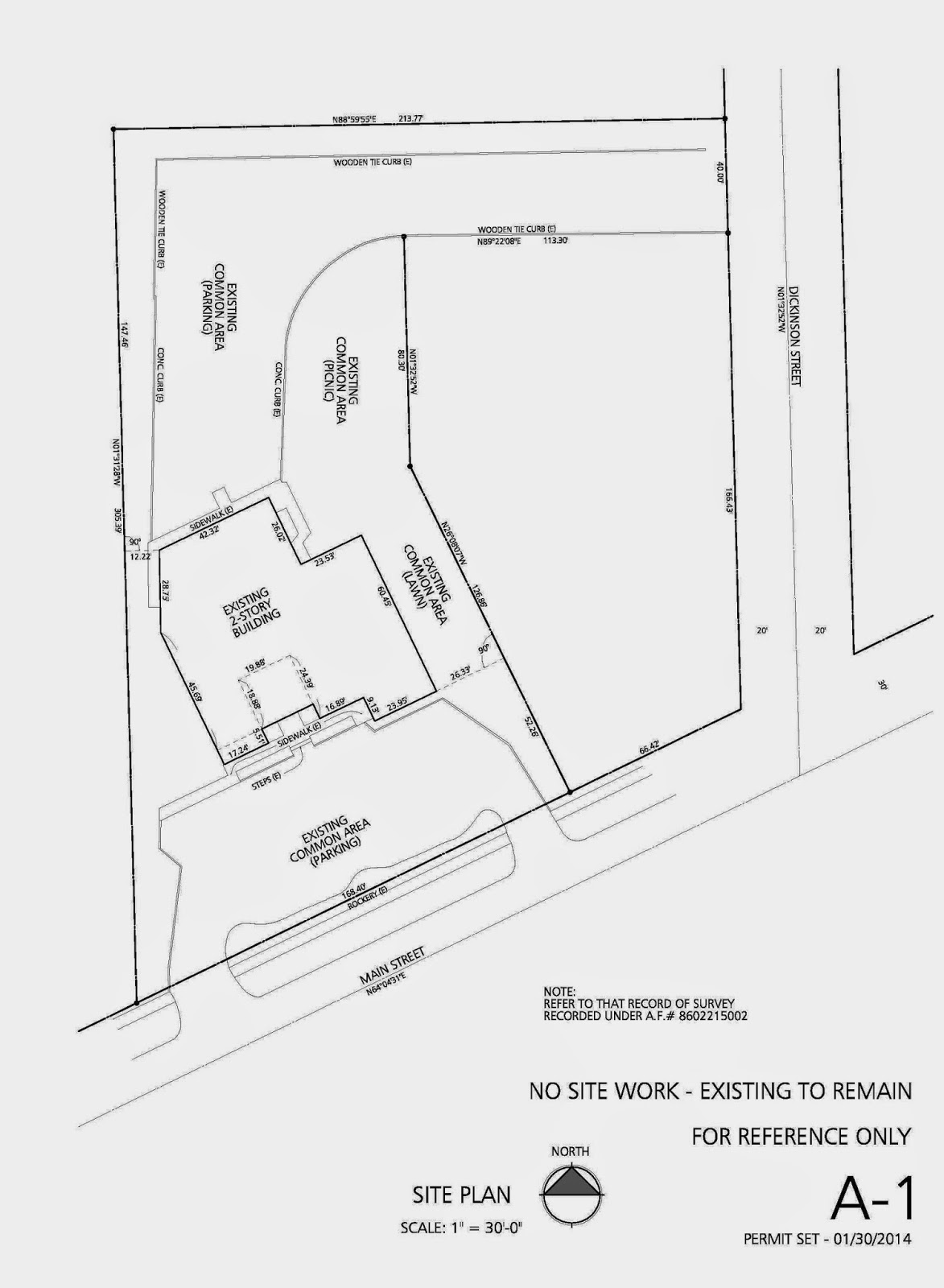
Building Permit Site Plan
Building Permit Site Plan - Site plans are essential documents used by architects, engineers, urban planners, developers, and government agencies to ensure compliance with regulations, coordinate development. Click on the links below for more information on each category of permits: From the most basic plot plan examples to fully detailed site plans for permit, we got you covered. The automaker hasn't formally announced plans to expand into maine, but a building permit says the site would be an auto dealership and service center for the company run by. The department of building inspection (dbi) reviews every building permit application for life safety and building code compliance. We’ll gather your property lines, building. Find the right site plan for your permit application. 24h plans offers custom site plan drawing and plot plan drafting services for homes & businesses, building permits, land plot subdivision, garages, & more! For zoning permits, please refer to the site plan tutorial page at the bottom of the page. Why site plans are essential for obtaining building. Click on the links below for more information on each category of permits: 24h plans offers custom site plan drawing and plot plan drafting services for homes & businesses, building permits, land plot subdivision, garages, & more! Why site plans are essential for obtaining building. Zoning compliance form fy25 (pdf, 4mb). Start by measuring the lot dimensions , marking. We've got 3 residential and 2 commercial site plan packages to choose from. Creating and submitting a site plan for a permit is a critical step in any construction or development project. Site plans are essential documents used by architects, engineers, urban planners, developers, and government agencies to ensure compliance with regulations, coordinate development. Widely accepted by building departments and hoas for residential permitting. The department of planning, engineering & permits works to provide public safety to the citizens of birmingham through conservation and development of communities that reflect their values,. Widely accepted by building departments and hoas for residential permitting. From the most basic plot plan examples to fully detailed site plans for permit, we got you covered. Creating and submitting a site plan for a permit is a critical step in any construction or development project. The current (2015) permit is in question and answer format. What a site. Why site plans are essential for obtaining building. We've got 3 residential and 2 commercial site plan packages to choose from. Site plans are essential documents used by architects, engineers, urban planners, developers, and government agencies to ensure compliance with regulations, coordinate development. What a site plan is and how it’s used. For zoning permits, please refer to the site. And every package can be customized with options. Dep gives the operator coverage to operate. Key elements of a site plan. We've got 3 residential and 2 commercial site plan packages to choose from. The department of planning, engineering & permits works to provide public safety to the citizens of birmingham through conservation and development of communities that reflect their. 24h plans offers custom site plan drawing and plot plan drafting services for homes & businesses, building permits, land plot subdivision, garages, & more! Click on the links below for more information on each category of permits: Key elements of a site plan. And every package can be customized with options. A site plan can be generated using this map. Why site plans are essential for obtaining building. Familiarity with your site, including lot and house. What a site plan is and how it’s used. For zoning permits, please refer to the site plan tutorial page at the bottom of the page. Find the right site plan for your permit application. What a site plan is and how it’s used. The automaker hasn't formally announced plans to expand into maine, but a building permit says the site would be an auto dealership and service center for the company run by. Find the right site plan for your permit application. From the most basic plot plan examples to fully detailed site plans. Click on the links below for more information on each category of permits: Building permits aren’t just for additions. Where is my permit?the construction generic permit is a permit by rule. What site plans include, such as property lines, utility lines, and construction limits. Start by measuring the lot dimensions , marking. Zoning compliance form fy25 (pdf, 4mb). We've got 3 residential and 2 commercial site plan packages to choose from. Widely accepted by building departments and hoas for residential permitting. Creating and submitting a site plan for a permit is a critical step in any construction or development project. Residential site plans are perfect for building or demolition permit applications and. Click on the links below for more information on each category of permits: Find the right site plan for your permit application. Where is my permit?the construction generic permit is a permit by rule. Familiarity with your site, including lot and house. The current (2015) permit is in question and answer format. The department of building inspection (dbi) reviews every building permit application for life safety and building code compliance. Why site plans are essential for obtaining building. What site plans include, such as property lines, utility lines, and construction limits. Start by measuring the lot dimensions , marking. Dep gives the operator coverage to operate. The current (2015) permit is in question and answer format. Widely accepted by building departments and hoas for residential permitting. The department of planning, engineering & permits works to provide public safety to the citizens of birmingham through conservation and development of communities that reflect their values,. Residential site plans are perfect for building or demolition permit applications and project planning. Where is my permit?the construction generic permit is a permit by rule. A site plan can be generated using this map. We’ll gather your property lines, building. 24h plans offers custom site plan drawing and plot plan drafting services for homes & businesses, building permits, land plot subdivision, garages, & more! Click on the links below for more information on each category of permits: Dep gives the operator coverage to operate. Key elements of a site plan. The automaker hasn't formally announced plans to expand into maine, but a building permit says the site would be an auto dealership and service center for the company run by. And every package can be customized with options. Site plans are essential documents used by architects, engineers, urban planners, developers, and government agencies to ensure compliance with regulations, coordinate development. Why site plans are essential for obtaining building. What a site plan is and how it’s used.Drafting Services For Building Permits
Requesting a Building Permit Alleghany County, Virginia
Plans You Need for a Building Permit Portland.gov
Site Plans for Permits
Development Review and Permits
How To Draw A Site Plan For A Building Permit of all time The ultimate
How to Draw a Site Plan for a Building Permit Hodeby
24h Site Plans for Building Permits Plot Plans Custom Site Plan Drafting
Precision Surveying LLC Site and Permit Plan Preparation
What Is A Site Plan For A Building Permit
Each Permit Has Unique Requirements And Regulations To Comply With Prior To Issuance.
The Department Of Building Inspection (Dbi) Reviews Every Building Permit Application For Life Safety And Building Code Compliance.
Find The Right Site Plan For Your Permit Application.
Creating And Submitting A Site Plan For A Permit Is A Critical Step In Any Construction Or Development Project.
Related Post:
.jpg)








