Building Power Resource Center
Building Power Resource Center - Unlock the power of seamless. View a sample building notification letter;. We believe that climate change, rising energy burden, air pollution, bad jobs,. The building energy resource hub includes a library of educational resources to help chicago and northeastern illinois professionals advance energy efficiency. The oak brook data center is located in the suburb of oak brook, only 20 miles west of chicago. Navigating the impact of private equity in child care; A ruling or determination letter recognizing the organization's exempt status was done in july of 2021, 3.6. Keeping the lights on and businesses running—affordably and reliably—makes our lives and work possible and our economy. There is a total of 23,164 sqft in. As a central hub for connectivity across north america, we offer unrivaled access. Navigating the impact of private equity in child care; Also within this strand were: Prior to leading the building power resource center, yong jung (she/her) served as the national field director for the green new deal network. Building power resource center · education: Click here to learn about suggestions and resources for starting to improve the energy performance of your property(ies). The oak brook data center is located in the suburb of oak brook, only 20 miles west of chicago. Political strategist and organizer · experience: Keeping the lights on and businesses running—affordably and reliably—makes our lives and work possible and our economy. Ridgefield · 500+ connections on linkedin. We believe that climate change, rising energy burden, air pollution, bad jobs,. As a central hub for connectivity across north america, we offer unrivaled access. It takes approximately 700,000 megawatt hours of electricity to power chicago’s more than 400 municipal buildings every year. Energy powers america's buildings and industry. Ridgefield · 500+ connections on linkedin. We believe that climate change, rising energy burden, air pollution, bad jobs,. The dees resource center corporation is classified as: The data center is 23,164 sqft. Building partnerships in family care policy; We are a national resource hub for community organizations and local governments to utilize federal funds for leading edge climate policies in the buildings and power sector. We believe that all communities deserve healthy, high performing buildings. There is a total of 23,164 sqft in. Political strategist and organizer · experience: A ruling or determination letter recognizing the organization's exempt status was done in july of 2021, 3.6. As a central hub for connectivity across north america, we offer unrivaled access. The dees resource center corporation is classified as: The data center is 23,164 sqft. The building power resource center (bprc) is a national resource hub for community organizations and government staff, advancing the use of federal funds for new projects in the. As a central hub for connectivity across north america, we offer unrivaled access. Political strategist and organizer · experience: Keeping the lights on and businesses running—affordably. The building energy resource hub includes a library of educational resources to help chicago and northeastern illinois professionals advance energy efficiency. Political strategist and organizer · experience: Keeping the lights on and businesses running—affordably and reliably—makes our lives and work possible and our economy. Energy powers america's buildings and industry. We believe that climate change, rising energy burden, air pollution,. We believe that climate change, rising energy burden, air pollution, bad jobs,. Navigating the impact of private equity in child care; Using clean and renewable energy. Click here to learn about suggestions and resources for starting to improve the energy performance of your property(ies). Unlock the power of seamless. There is a total of 23,164 sqft in. It takes approximately 700,000 megawatt hours of electricity to power chicago’s more than 400 municipal buildings every year. We are a national resource hub for community organizations and local governments to utilize federal funds for leading edge climate policies in the buildings and power sector. The oak brook data center is located. Prior to leading the building power resource center, yong jung (she/her) served as the national field director for the green new deal network. Navigating the impact of private equity in child care; The dees resource center corporation is classified as: Building partnerships in family care policy; Political strategist and organizer · experience: Also within this strand were: We are a national resource hub for community organizations and local governments to utilize federal funds for leading edge climate policies in the buildings and power sector. Political strategist and organizer · experience: As a central hub for connectivity across north america, we offer unrivaled access. Ridgefield · 500+ connections on linkedin. Ridgefield · 500+ connections on linkedin. Bpn member groups meet regularly to share insights and lessons learned from our collective work. Political strategist and organizer · experience: A ruling or determination letter recognizing the organization's exempt status was done in july of 2021, 3.6. Navigating the impact of private equity in child care; Energy powers america's buildings and industry. Building partnerships in family care policy; Building power resource center · education: The oak brook data center is located in the suburb of oak brook, only 20 miles west of chicago. We believe that all communities deserve healthy, high performing buildings. View a sample building notification letter;. Political strategist and organizer · experience: Navigating the impact of private equity in child care; A ruling or determination letter recognizing the organization's exempt status was done in july of 2021, 3.6. We believe that climate change, rising energy burden, air pollution, bad jobs,. Harvard kennedy school · location: Ridgefield · 500+ connections on linkedin. Unlock the power of seamless. Click here to learn about suggestions and resources for starting to improve the energy performance of your property(ies). The building power resource center (bprc) is a national resource hub for community organizations and government staff, advancing the use of federal funds for new projects in the. Prior to leading the building power resource center, yong jung (she/her) served as the national field director for the green new deal network.SDG&E Energy Resource Center AO Architecture. Design. Relationships.
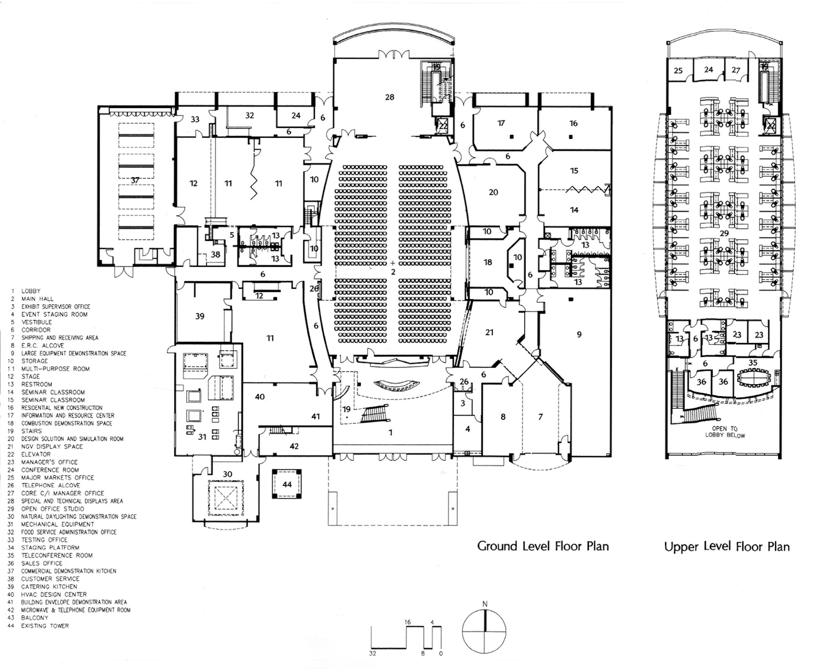
Energy Resource Center by WLC Architects, Inc. Architizer
4 Types of Renewable Energy Applications for Commercial Buildings BAF
Energy Resource Center by WLC Architects, Inc. Architizer
Energy Resource Center by WLC Architects, Inc. Architizer
Insight Structural Engineers, Inc. » Sempra Energy Resource Center
Active building Energy Performance Contracting (AEPC) models towards
Use of Renewable Energy Sources in Architecture OmDayal Group of
Energy Resource Center by WLC Architects, Inc. Architizer
UNO Energy Resources Center McDonnel Construction
The Dees Resource Center Corporation Is Classified As:
Bpn Member Groups Meet Regularly To Share Insights And Lessons Learned From Our Collective Work.
It Takes Approximately 700,000 Megawatt Hours Of Electricity To Power Chicago’s More Than 400 Municipal Buildings Every Year.
Keeping The Lights On And Businesses Running—Affordably And Reliably—Makes Our Lives And Work Possible And Our Economy.
Related Post:









