Building Regs M2
Building Regs M2 - Building regulations part f wants to know how much air (in m3hr) passes through each metre square area of the fabric (m2). 780 cmr chapter 11r (residential) and 780 cmr chapter 13 (commercial).the 780 cmr 10th edition is the current. For continuous ventilation, rates are adjusted for the number of bedrooms as specified in. Building regulations are made for specific purposes, primarily the health and safety, welfare and convenience of people and for energy conservation. This volume of this approved document supports requirements m1, m2 and m3 of schedule 1 to the building regulations 2010. An interactive map that lets you find out how your building is zoned, learn where to locate your business and explore zoning patterns throughout chicago. It takes effect on 1 october 2015 for use in england*. This document covers the requirements for access to and the use of new buildings, including dwellings, for everyone. The 2004 edition of approved document m with 2010 and. The new approved documents take effect on 1st january 2021 except in respect of work already commenced before that date or in respect of work for which a building notice or initial notice. Save time & money on site by unlocking housebuild's premium building regulations & building guidelines! It takes effect on 1 october 2015 for use in england*. It takes effect on 1 october 2015 for use in england*. Part m volumes 1 and 2 contain guidance on access to and use of buildings. The new approved documents take effect on 1st january 2021 except in respect of work already commenced before that date or in respect of work for which a building notice or initial notice. This is the air permeability (ap or m3.hr/m2) figure. Building regulations are made for specific purposes, primarily the health and safety, welfare and convenience of people and for energy conservation. The 2004 edition of approved document m with. An interactive map that lets you find out how your building is zoned, learn where to locate your business and explore zoning patterns throughout chicago. The 2004 edition of approved document m with 2010 and. Supports requirements m1, m2 and m3 of schedule 1 to the building regulations 2010. It takes effect on 1 october 2015 for use in england*. Requirements m1, m2 and m3 of schedule 1 to the build. 780 cmr chapter 11r (residential) and 780 cmr chapter 13 (commercial).the 780 cmr 10th edition is the current. This document covers the requirements for. Approach to design to accommodate the needs of all people. This is the air permeability (ap or m3.hr/m2) figure. This document covers the requirements for access to and the use of new buildings, including dwellings, for everyone. The new approved documents take effect on 1st january 2021 except in respect of work already commenced before that date or in respect. Save time & money on site by unlocking housebuild's premium building regulations & building guidelines! This document covers the requirements for access to and the use of new buildings, including dwellings, for everyone. Requirements m1, m2 and m3 of schedule 1 to the build. The new approved documents take effect on 1st january 2021 except in respect of work already. 780 cmr chapter 11r (residential) and 780 cmr chapter 13 (commercial).the 780 cmr 10th edition is the current. A new section in the ad (section 4) on ‘facilities in buildings other than dwellings’ has been introduced to cover audience and. The new approved documents take effect on 1st january 2021 except in respect of work already commenced before that date. It takes effect on 1 october 2015 for use in england*. Approved documents provide guidance on how to meet the building regulations. It takes effect on 1 october 2015 for use in england*. An interactive map that lets you find out how your building is zoned, learn where to locate your business and explore zoning patterns throughout chicago. Supports requirements. Building regulations part f wants to know how much air (in m3hr) passes through each metre square area of the fabric (m2). Part m volumes 1 and 2 contain guidance on access to and use of buildings. It takes effect on 1 october 2015 for use in england*. For continuous ventilation, rates are adjusted for the number of bedrooms as. Requirements m1, m2 and m3 of schedule 1 to the build. Part m volumes 1 and 2 contain guidance on access to and use of buildings. This document covers the requirements for access to and the use of new buildings, including dwellings, for everyone. It takes effect on 1 october 2015 for use in england*. The new approved documents take. A new section in the ad (section 4) on ‘facilities in buildings other than dwellings’ has been introduced to cover audience and. It also includes access and sanitary conveniences to. The 2004 edition of approved document m with 2010 and. This volume of this approved document supports requirements m1, m2 and m3 of schedule 1 to the building regulations 2010.. An interactive map that lets you find out how your building is zoned, learn where to locate your business and explore zoning patterns throughout chicago. This volume of this approved document supports requirements m1, m2 and m3 of schedule 1 to the building regulations 2010. This document covers the requirements for access to and the use of new buildings, including. An interactive map that lets you find out how your building is zoned, learn where to locate your business and explore zoning patterns throughout chicago. Approved documents provide guidance on how to meet the building regulations. Building regulations are made for specific purposes, primarily the health and safety, welfare and convenience of people and for energy conservation. The 2004 edition. 780 cmr chapter 11r (residential) and 780 cmr chapter 13 (commercial).the 780 cmr 10th edition is the current. It takes effect on 1 october 2015 for use in england*. Supports requirements m1, m2 and m3 of schedule 1 to the building regulations 2010. A minimum rate of 0.3 litres per second (l/s) per m2 of internal floor area; This is the air permeability (ap or m3.hr/m2) figure. Approved documents provide guidance on how to meet the building regulations. A new section in the ad (section 4) on ‘facilities in buildings other than dwellings’ has been introduced to cover audience and. Requirements m1, m2 and m3 of schedule 1 to the build. The new approved documents take effect on 1st january 2021 except in respect of work already commenced before that date or in respect of work for which a building notice or initial notice. It takes effect on 1 october 2015 for use in england*. The base code is iecc 2021 with ma amendments: Save time & money on site by unlocking housebuild's premium building regulations & building guidelines! Approach to design to accommodate the needs of all people. The 2004 edition of approved document m with 2010 and. For continuous ventilation, rates are adjusted for the number of bedrooms as specified in. This document covers the requirements for access to and the use of new buildings, including dwellings, for everyone.Self Build & Design Applying for Building Regulations
Regs The Complete Building Regs Service
GARAGE CONVERSION HIGH SPECIFICATION BUILT TO BUILDING REGS From £1500
(PDF) Building Regs Part M DOKUMEN.TIPS
Your quick guide to Building Regulations Drawings Fifi McGee
Building Regs Domestic Property Plans
Basic building regs question... New House & Self Build Design
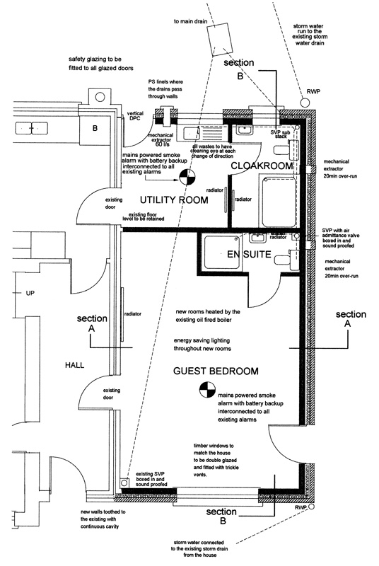
Building Regulations Drawings Construction Notes My blog
GARAGE CONVERSION HIGH SPECIFICATION BUILT TO BUILDING REGS From £1500
Building Regulations Notes Sample Houseplansdirect
An Interactive Map That Lets You Find Out How Your Building Is Zoned, Learn Where To Locate Your Business And Explore Zoning Patterns Throughout Chicago.
Part M Volumes 1 And 2 Contain Guidance On Access To And Use Of Buildings.
The 2004 Edition Of Approved Document M With.
Building Regulations Part F Wants To Know How Much Air (In M3Hr) Passes Through Each Metre Square Area Of The Fabric (M2).
Related Post:









