City Of Beverly Hills Building Permits
City Of Beverly Hills Building Permits - Open air dining | retail queuing | current. 455 north rexford drive, 1st floor. Some applications can be submitted online, by accessing the online permit application (opa) portal. Please complete this online trousdale vehicle certification application to initiate the vehicle inspection process. (refer to the types of projects listed under electronic plan check). Where can i apply for a permit? The city utilizes the citysmart online permit portal system to manage city permits. Report a concern (ask bev) residential parking permits and exemptions; City of beverly hills 455 north rexford drive beverly hills, ca 90210 phone: Review the permit applications for the filming and special events division of community development. The city utilizes the citysmart online permit portal system to manage city permits. Please complete this online trousdale vehicle certification application to initiate the vehicle inspection process. The monthly building permit report provides information on building permits that have been applied for or issued within the previous month. City of beverly hills 455 north rexford drive beverly hills, ca 90210 phone: In partnership with the city council and the community, the community development department guides the planning, development, and preservation of beverly hills. 455 north rexford drive, 1st floor. This is where you can access and pay for your planning, building and safety, public works, fire. Modifications will be handled outside of the online permit application portal. The city of beverly hills is here to serve the beverly hills community through an. Review the permit applications for the filming and special events division of community development. Modifications will be handled outside of the online permit application portal. The city of beverly hills is here to serve the beverly hills community through an. This online permit application is applicable for new permits only. In partnership with the city council and the community, the community development department guides the planning, development, and preservation of beverly hills. Review the. Report a concern (ask bev) residential parking permits and exemptions; If you can't find the information you need or require additional assistance, please. Open air dining | retail queuing | current. Please complete this online trousdale vehicle certification application to initiate the vehicle inspection process. This is where you can access and pay for your planning, building and safety, public. The planning division guides the development of beverly hills through administration of the general plan and zoning code. City of beverly hills 455 north rexford drive beverly hills, ca 90210 phone: 455 north rexford drive, 1st floor. Welcome to the building inspectors' webpage, your resource for navigating construction and safety standards in the city of beverly hills. Review the permit. Locate a property by searching on map using address, street intersection, latitude / longitude, apn, or permit number City of beverly hills 455 north rexford drive beverly hills, ca 90210 phone: Please complete this online trousdale vehicle certification application to initiate the vehicle inspection process. In partnership with the city council and the community, the community development department guides the. Please contact your plan review team or. The planning division guides the development of beverly hills through administration of the general plan and zoning code. Report a concern (ask bev) residential parking permits and exemptions; This online permit application is applicable for new permits only. Welcome to the building inspectors' webpage, your resource for navigating construction and safety standards in. The monthly building permit report provides information on building permits that have been applied for or issued within the previous month. In partnership with the city council and the community, the community development department guides the planning, development, and preservation of beverly hills. Report a concern (ask bev) residential parking permits and exemptions; Please contact your plan review team or.. The monthly building permit report provides information on building permits that have been applied for or issued within the previous month. Discover answers to your questions about the city of beverly hills, powered by advanced ai technology. City of beverly hills 455 north rexford drive beverly hills, ca 90210 phone: The city of beverly hills is here to serve the. Building permits are required for structural alterations, internal and external improvements, general repairs, new construction, and for demolition. (refer to the types of projects listed under electronic plan check). Report a concern (ask bev) residential parking permits and exemptions; Locate a property by searching on map using address, street intersection, latitude / longitude, apn, or permit number The city of. The city utilizes the citysmart online permit portal system to manage city permits. Permit application (opa | www.beverlyhills.org/opa) to initiate the plan review and permitting process. Some applications can be submitted online, by accessing the online permit application (opa) portal. The monthly building permit report provides information on building permits that have been applied for or issued within the previous. Discover answers to your questions about the city of beverly hills, powered by advanced ai technology. Some applications can be submitted online, by accessing the online permit application (opa) portal. Building permits are required for structural alterations, internal and external improvements, general repairs, new construction, and for demolition. Please contact your plan review team or. Welcome to the building inspectors'. If you can't find the information you need or require additional assistance, please. 455 north rexford drive, 1st floor. This is where you can access and pay for your planning, building and safety, public works, fire. In partnership with the city council and the community, the community development department guides the planning, development, and preservation of beverly hills. The planning division guides the development of beverly hills through administration of the general plan and zoning code. Modifications will be handled outside of the online permit application portal. Welcome to the building inspectors' webpage, your resource for navigating construction and safety standards in the city of beverly hills. The monthly building permit report provides information on building permits that have been applied for or issued within the previous month. Open air dining | retail queuing | current. Permit application (opa | www.beverlyhills.org/opa) to initiate the plan review and permitting process. The community development department facilitiates address update requests, plan duplication requests, and maintains the following records for the city of beverly hills: Report a concern (ask bev) residential parking permits and exemptions; Some applications can be submitted online, by accessing the online permit application (opa) portal. Please contact your plan review team or. Please complete this online trousdale vehicle certification application to initiate the vehicle inspection process. Discover answers to your questions about the city of beverly hills, powered by advanced ai technology.Fillable Online Renew Parking Permits City Of Beverly Hills Fax Email
City Of Beverly Hills Building And Safety change comin
(PDF) June 2011 is focused City Of Beverly Hills DOKUMEN.TIPS
Beverly Hills Building Permits Halted by Judge Perigon
OBC Activity Report Building Permits the City of Beverly Hills
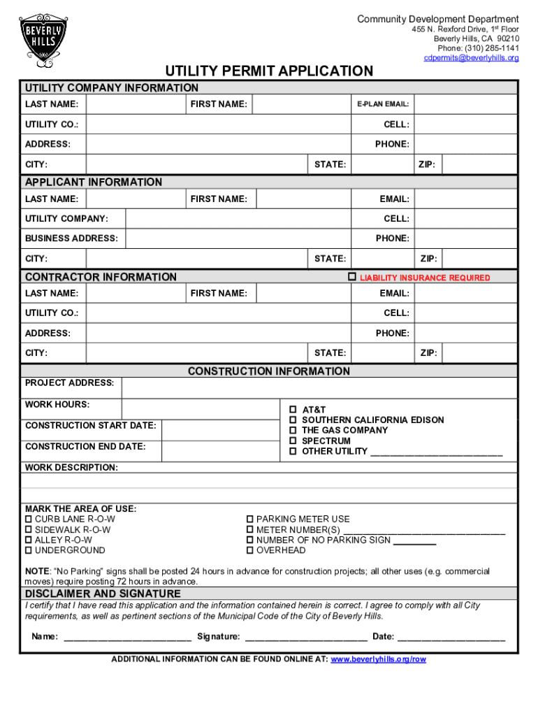
Fillable Online Get the beverly hills permits form pdfFiller Fax
42 buildings in Beverly Hills aren't seismically retrofitted. Is yours
20202024 Form CA Application for Preferential/Overnight Parking Permit
Beverly Hills Building and Safety 20092024 Form Fill Out and Sign
Fillable Online City of Beverly Hills Parking Permit Portal Fax Email
City Of Beverly Hills Community Development Department Online Permit Applications (O.p.a)
The City Of Beverly Hills Is Here To Serve The Beverly Hills Community Through An.
Locate A Property By Searching On Map Using Address, Street Intersection, Latitude / Longitude, Apn, Or Permit Number
The City Utilizes The Citysmart Online Permit Portal System To Manage City Permits.
Related Post:








