City Of Dunedin Building Permits
City Of Dunedin Building Permits - The program contains funding for the eligible building permit fees related to resiliency activities and projects. Building permits are required for most work on residential buildings and structures. Permits issued for the demolition of a structure shall expire sixty (60) days from the date of issuance. You can use our building permit search to see the contractors who are active in your neighborhood and the projects currently taking place. City of dunedin building permits is located at 737 louden ave in dunedin, florida 34698. Search our database of free dunedin residential building & property records including ownership, land use & zoning, parcel & structural descriptions, market valuations, sales history, tax. Find all the information you need to register and file permits anywhere in the state. For a justifiable cause, one (1) extension of time for a period not exceeding thirty. Doing business with the city; Use our remodeling calculator to get a. The following items must be submitted for most new construction, addition or renovation projects. Residential buildings include single family homes, duplexes, triplexes, townhomes, condominiums,. Doing business with the city; Building codes, permits & construction; Find all the information you need to register and file permits anywhere in the state. 📌 how soon can you get an inspection? City of dunedin building permits is located at 737 louden ave in dunedin, florida 34698. The program contains funding for the eligible building permit fees related to resiliency activities and projects. The dunedin city council’s building services team is here to help make sure your homes are safe, healthy and fit for purpose, and that the steps you need to work through are simple, clear. You can use our building permit search to see the contractors who are active in your neighborhood and the projects currently taking place. Search for building permits in dunedin and every other jurisdiction in florida. City of dunedin building permits is located at 737 louden ave in dunedin, florida 34698. Building permits are required for most work on residential buildings and structures. The program contains funding for the eligible building permit fees related to resiliency activities and projects. This page contains information on. Additional funding is provided to support improvements or initiatives that are non. The city of dunedin’s community development department provides dedicated webpage for its citizens, business owners, and contractors on everything they need to know. City of dunedin building permits is located at 737 louden ave in dunedin, florida 34698. Use our remodeling calculator to get a. Permits issued for. Doing business with the city; The following items must be submitted for most new construction, addition or renovation projects. 📌 how soon can you get an inspection? Find all the information you need to register and file permits anywhere in the state. City of dunedin building permits is located at 737 louden ave in dunedin, florida 34698. For a justifiable cause, one (1) extension of time for a period not exceeding thirty. The dunedin city council’s building services team is here to help make sure your homes are safe, healthy and fit for purpose, and that the steps you need to work through are simple, clear. Use our remodeling calculator to get a. Learn when you need. You can use our building permit search to see the contractors who are active in your neighborhood and the projects currently taking place. City of dunedin building permits is located at 737 louden ave in dunedin, florida 34698. This page contains information on building inspections, building location certificate requirements, how to apply for an extension of time to start work,. You can use our building permit search to see the contractors who are active in your neighborhood and the projects currently taking place. This page contains information on building inspections, building location certificate requirements, how to apply for an extension of time to start work, how to book an inspection. The dunedin city council’s building services team is here to. Building permits are required for most work on residential buildings and structures. Search our database of free dunedin residential building & property records including ownership, land use & zoning, parcel & structural descriptions, market valuations, sales history, tax. City of dunedin building permits is located at 737 louden ave in dunedin, florida 34698. Senior multimedia coordinator brooke nolan from city. For a justifiable cause, one (1) extension of time for a period not exceeding thirty. Doing business with the city; The city of dunedin’s community development department provides dedicated webpage for its citizens, business owners, and contractors on everything they need to know. Residential buildings include single family homes, duplexes, triplexes, townhomes, condominiums,. You can use our building permit search. Senior multimedia coordinator brooke nolan from city of dunedin · 1 nov 📌 what is the turnaround time for permits? Residential buildings include single family homes, duplexes, triplexes, townhomes, condominiums,. The following items must be submitted for most new construction, addition or renovation projects. For a justifiable cause, one (1) extension of time for a period not exceeding thirty. Search. Use our remodeling calculator to get a. Learn when you need a permit, submittal requirements, apply online, view review status, pay permit fees and schedule inspections all from your home, office or mobile device. Search for building permits in dunedin and every other jurisdiction in florida. Visit the dunedin citizen self service (css) portal to register, login and apply for. Use our remodeling calculator to get a. Find all the information you need to register and file permits anywhere in the state. Permits issued for the demolition of a structure shall expire sixty (60) days from the date of issuance. Building permits are required for most work on residential buildings and structures. City of dunedin building permits is located at 737 louden ave in dunedin, florida 34698. Visit the dunedin citizen self service (css) portal to register, login and apply for permits. Doing business with the city; The program contains funding for the eligible building permit fees related to resiliency activities and projects. Senior multimedia coordinator brooke nolan from city of dunedin · 1 nov 📌 what is the turnaround time for permits? For a justifiable cause, one (1) extension of time for a period not exceeding thirty. Building codes, permits & construction; Learn when you need a permit, submittal requirements, apply online, view review status, pay permit fees and schedule inspections all from your home, office or mobile device. Search our database of free dunedin residential building & property records including ownership, land use & zoning, parcel & structural descriptions, market valuations, sales history, tax. The following items must be submitted for most new construction, addition or renovation projects. You can use our building permit search to see the contractors who are active in your neighborhood and the projects currently taking place. Additional funding is provided to support improvements or initiatives that are non.Building Codes, Permits & Construction City of Dunedin, FL
City Facilities City of Dunedin, FL
Fillable Online Permits & Inspections City of Dunedin, FL Fax Email
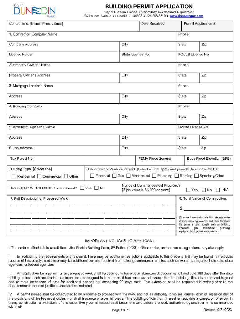
Fillable Online Building Permit Application City of Dunedin, Florida
Permits & Inspections City of Dunedin, FL
Permits & Inspections City of Dunedin, FL
Zoning City of Dunedin, FL
City building permit application Fill out & sign online DocHub
Permits & Inspections City of Dunedin, FL
How to Create an Account on the Permit and Development Portal YouTube
Search For Building Permits In Dunedin And Every Other Jurisdiction In Florida.
View The Contact And Building Permit Search Information For City Of Dunedin Building Division, Florida On Permit Hunt, A Platform For Searching Permit Records.
📌 How Soon Can You Get An Inspection?
The City Of Dunedin’s Community Development Department Provides Dedicated Webpage For Its Citizens, Business Owners, And Contractors On Everything They Need To Know.
Related Post:









