City Of Prior Lake Building Permits
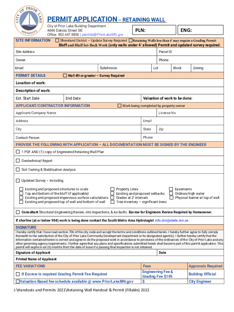
City Of Prior Lake Building Permits - Staff can be reached regarding sign permits, property setbacks or easements, performance standards, city code interpretation, zoning regulations, conditional use permits, platting,. Inspection results, permit information, and even outstanding fees are accessible to the user. City policies help interpret and enforce city code. City code is comprised of the municipal laws adopted by the city council in the form of ordinances. Search by address through tax, building department, and miscellaneous receivable records. Enter the permit, enforcement, certificate, or pze process number for the record you are attempting to search on. This pin will link your bs&a account with your city of prior lake contractor account. Looking for prior lake city hall marriage licenses, public records & officials? The complete building permit history of prior lake, mn. Select your license or permit type for more information. Buildzoom makes it easy to get construction projects done, under budget and ahead of schedule! Inspections are required for most building permits including, but not limited to: Apply for a planning, zoning or engineering process. Select your license or permit type for more information. Community development allows the public to apply for a permit or request an inspection online. The complete building permit history of prior lake, mn. Prior lake city code effective. City policies help interpret and enforce city code. If a project is located in the city of shakopee or is initiated by a city, scott county, or the state of minnesota, please contact the district to receive a permit application. This pin will link your bs&a account with your city of prior lake contractor account. No building permit shall be issued unless the. For building permit inquiries, please contact the. Select your license or permit type for more information. City policies help interpret and enforce city code. Quickly find town & city hall phone number, directions & services (prior lake, mn). This pin will link your bs&a account with your city of prior lake contractor account. Search by address through tax, building department, and miscellaneous receivable records. If you are making any home, driveway or landscaping improvements, check to see if you need a city permit 藺 隣 www.cityofpriorlake.com/permits Community development allows the public to apply for a permit or request. If a project is located in the city of shakopee or is initiated by a city, scott county, or the state of minnesota, please contact the district to receive a permit application. For building permit inquiries, please contact the. Looking for prior lake city hall marriage licenses, public records & officials? Apply for a planning, zoning or engineering process. City. City policies help interpret and enforce city code. If a project is located in the city of shakopee or is initiated by a city, scott county, or the state of minnesota, please contact the district to receive a permit application. Inspections are required for most building permits including, but not limited to: Apply for a planning, zoning or engineering process.. Building inspections serves a life and safety purpose for the community by providing plan review, issuing building permits, and conducting inspections for new construction and redevelopment. Inspections are required for most building permits including, but not limited to: Inspection results, permit information, and even outstanding fees are accessible to the user. Enter the permit, enforcement, certificate, or pze process number. Community development allows the public to apply for a permit or request an inspection online. The complete building permit history of prior lake, mn. Building department record number search by record number through building department records. For building permit inquiries, please contact the. City policies help interpret and enforce city code. Staff can be reached regarding sign permits, property setbacks or easements, performance standards, city code interpretation, zoning regulations, conditional use permits, platting,. Building inspections serves a life and safety purpose for the community by providing plan review, issuing building permits, and conducting inspections for new construction and redevelopment. Community development allows the public to apply for a permit or request. Building inspections serves a life and safety purpose for the community by providing plan review, issuing building permits, and conducting inspections for new construction and redevelopment. Inspections are required for most building permits including, but not limited to: Building department record number search by record number through building department records. Select your license or permit type for more information. Search. Building department record number search by record number through building department records. City code is comprised of the municipal laws adopted by the city council in the form of ordinances. No building permit shall be issued unless the. Enter the permit, enforcement, certificate, or pze process number for the record you are attempting to search on. If you are making. The complete building permit history of prior lake, mn. Select your license or permit type for more information. Buildzoom makes it easy to get construction projects done, under budget and ahead of schedule! If a project is located in the city of shakopee or is initiated by a city, scott county, or the state of minnesota, please contact the district. Community development allows the public to apply for a permit or request an inspection online. Enter the permit, enforcement, certificate, or pze process number for the record you are attempting to search on. City policies help interpret and enforce city code. Search by address through tax, building department, and miscellaneous receivable records. Inspection results, permit information, and even outstanding fees are accessible to the user. Inspections are required for most building permits including, but not limited to: Apply for a planning, zoning or engineering process. Search by address through tax, building department, and miscellaneous receivable records. For building permit inquiries, please contact the. Please visit the city of prior lake website @ city of prior lake building inspections for permit relevent information, handouts, submittal documents and inspection requirements. The complete building permit history of prior lake, mn. No building permit shall be issued unless the. This pin will link your bs&a account with your city of prior lake contractor account. City code is comprised of the municipal laws adopted by the city council in the form of ordinances. Looking for prior lake city hall marriage licenses, public records & officials? Quickly find town & city hall phone number, directions & services (prior lake, mn).Fillable Online BUILDING PERMIT WORKSHEET Fax Email Print pdfFiller
Building Permits City of Mountain Lake
City of Prior Lake, MN Home
Fillable Online Lakefront Park Master PlanCity of Prior Lake, MN Fax
Lower Level Finish City of Prior Lake
City of Prior Lake — Prior Lake Association
Fillable Online City of Prior Lake APPLICATION FOR EVENT DRIVEN
City of Prior Lake, MN Home
Fillable Online www.priorlakemn.govhomeshowpublisheddocumentCity of
City of Prior Lake, MN Home
If You Are Making Any Home, Driveway Or Landscaping Improvements, Check To See If You Need A City Permit 藺 隣 Www.cityofpriorlake.com/Permits
Buildzoom Makes It Easy To Get Construction Projects Done, Under Budget And Ahead Of Schedule!
Staff Can Be Reached Regarding Sign Permits, Property Setbacks Or Easements, Performance Standards, City Code Interpretation, Zoning Regulations, Conditional Use Permits, Platting,.
Building Inspections Serves A Life And Safety Purpose For The Community By Providing Plan Review, Issuing Building Permits, And Conducting Inspections For New Construction And Redevelopment.
Related Post:






