City Of Southlake Building Permits
City Of Southlake Building Permits - If you are still unsure about whether or not you need a permit, visit the city of southlake building inspections and code enforcement webpage or the residential construction webpage. A site plan for the building at 451 e. Have questions about city of southlake. Quickly find building dept phone number, directions & services (southlake, tx). City of southlake contracts and bids the city of southlake is responsible for conducting many projects, studies, and purchases that need the resources of the business community. The general purpose of a permit is to guarantee that a. Quickly access information about 2 building depts near you! Please click on the links below for development application submittal schedule for submittal deadlines, planning & zoning commission and city council meeting dates and the zoning. Looking for southlake building department permits, zoning & inspections? The most common permits are for the construction of a building such as a patio cover, gazebo, carport or installing a swimming pool. The general purpose of a permit is to guarantee that a. Quickly access information about 2 building depts near you! Building permits and certificates of occupancy If you are still unsure about whether or not you need a permit, visit the city of southlake building inspections and code enforcement webpage or the residential construction webpage. The complete building permit history of southlake, tx. Buildzoom makes it easy to get construction projects done, under budget and ahead of schedule! Sh 114 was approved by the southlake city council during the feb. Have questions about city of southlake. Looking for building permits, zoning & inspections in southlake, tx? Looking for southlake building department permits, zoning & inspections? Energov customer self service (css) is the city's website for permitting and scheduling inspections. Staff review of proposed projects december 2024: Looking for building permits, zoning & inspections in southlake, tx? Building permits and certificates of occupancy The most common permits are for the construction of a building such as a patio cover, gazebo, carport or installing a swimming pool. Looking for southlake building department permits, zoning & inspections? Staff review of proposed projects december 2024: Log out welcome to portal home City of southlake contracts and bids the city of southlake is responsible for conducting many projects, studies, and purchases that need the resources of the business community. Quickly access information about 2 building depts near you! Looking for building permits, zoning & inspections in southlake, tx? Residential construction applications, guidelines and checklists in the city of southlake. Energov customer self service (css) is the city's website for permitting and scheduling inspections. The general purpose of a permit is to guarantee that a. The complete building permit history of southlake, tx. Permits for window replacement and sport courts are. Looking for building permits, zoning & inspections in southlake, tx? The most common permits are for the construction of a building such as a patio cover, gazebo, carport or installing a swimming pool. Quickly find building dept phone number, directions & services (southlake, tx). Looking for southlake building department permits, zoning &. Permits for window replacement and sport courts are. Quickly access information about 2 building depts near you! The complete building permit history of southlake, tx. Have questions about city of southlake. Looking for southlake building department permits, zoning & inspections? Have questions about city of southlake. Please click on the links below for development application submittal schedule for submittal deadlines, planning & zoning commission and city council meeting dates and the zoning. The most common permits are for the construction of a building such as a patio cover, gazebo, carport or installing a swimming pool. Looking for building permits, zoning. Sh 114 was approved by the southlake city council during the feb. The most common permits are for the construction of a building such as a patio cover, gazebo, carport or installing a swimming pool. The general purpose of a permit is to guarantee that a. Energov customer self service (css) is the city's website for permitting and scheduling inspections.. The general purpose of a permit is to guarantee that a. Energov customer self service (css) is the city's website for permitting and scheduling inspections. Looking for building permits, zoning & inspections in southlake, tx? Please click on the links below for development application submittal schedule for submittal deadlines, planning & zoning commission and city council meeting dates and the. Residential construction applications, guidelines and checklists in the city of southlake. Looking for southlake building department permits, zoning & inspections? Log out welcome to portal home On thursday, june 25, the city of southlake planning and development services (pds) department will upgrade their online permitting and inspections system called energov, which. City of southlake contracts and bids the city of. Residential construction applications, guidelines and checklists in the city of southlake. Quickly find building dept phone number, directions & services (southlake, tx). As we prepare our customized projects for the spring reveal, it’s important to know whether or not you need a permit. A site plan for the building at 451 e. Quickly access information about 2 building depts near. Log out welcome to portal home Staff review of proposed projects december 2024: Permits for window replacement and sport courts are. On thursday, june 25, the city of southlake planning and development services (pds) department will upgrade their online permitting and inspections system called energov, which. Looking for building permits, zoning & inspections in southlake, tx? The general purpose of a permit is to guarantee that a. A site plan for the building at 451 e. Quickly access information about 2 building depts near you! Energov customer self service (css) is the city's website for permitting and scheduling inspections. If you are still unsure about whether or not you need a permit, visit the city of southlake building inspections and code enforcement webpage or the residential construction webpage. Buildzoom makes it easy to get construction projects done, under budget and ahead of schedule! Quickly find building dept phone number, directions & services (southlake, tx). The complete building permit history of southlake, tx. Building permits and certificates of occupancy As we prepare our customized projects for the spring reveal, it’s important to know whether or not you need a permit. Residential construction applications, guidelines and checklists in the city of southlake.Potential new Southlake mixeduse development gets initial approval
FY 2022 Annual Development Report by City of Southlake, Texas Issuu
2024 Fee Schedule Current 1252023 by City of Southlake, Texas Issuu
City building permit application Fill out & sign online DocHub
Southlake, TX Official Website Facility and Location Information
Building Inspections Southlake, TX Official Website
Building Inspections Southlake, TX Official Website
FY 2022 Annual Development Report by City of Southlake, Texas Issuu
Southlake Town Hall David M. Schwarz Architects
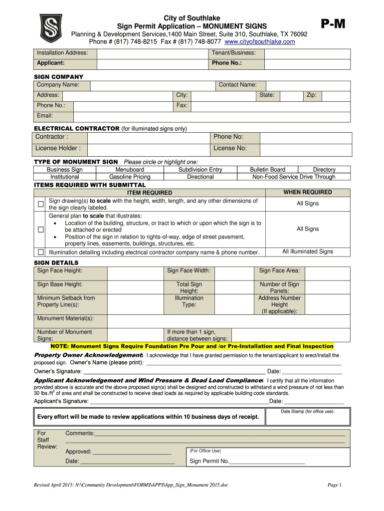
Fillable Online City of Southlake Sign Permit bApplicationb MONUMENT
The Most Common Permits Are For The Construction Of A Building Such As A Patio Cover, Gazebo, Carport Or Installing A Swimming Pool.
Sh 114 Was Approved By The Southlake City Council During The Feb.
Please Click On The Links Below For Development Application Submittal Schedule For Submittal Deadlines, Planning & Zoning Commission And City Council Meeting Dates And The Zoning.
Looking For Southlake Building Department Permits, Zoning & Inspections?
Related Post:






