Commercial Building Inspection Dubai
Commercial Building Inspection Dubai - Snags in residential or commercial real estate create a bad impression during a property transaction. Commercial property snagging & rera approved building inspection dubai. If a property has major defects, its value is going to be way less than the well. Specialize in building condition audit, cost allocation study, energy audit & more. Star property inspection covers all components including mep systems, structural elements, roofing, exteriors and interiors, elevators and escalators, safety and code compliance and. Experienced in conducting inspections of the entire. Ensuring tank safety to prevent leaks and corrosion and to meet. Building inspections provide buyers with peace of mind by providing an expert’s assessment of the property’s current state. Commercial properties in dubai are subject to. However, for larger or more complex properties, the cost can exceed this range. Our commercial property inspection services provide a thorough assessment of the building’s key systems, helping owners, buyers, and investors make informed decisions. Comprehensive report, free customised quotation, and independent inspection. Partnering with austenite tech, we. Whatever small problem or huge structural flaw, inspections will show. Some companies in dubai, united arab emirates that offer building inspection services include dubai municipality building inspection department, emirates building systems, and rak. We provide a thorough evaluation of commercial real estate, ensuring your property is safe, functional, and ready to meet your business needs. The audit involves inspecting and analyzing the state of any. Specialize in building condition audit, cost allocation study, energy audit & more. Snags in residential or commercial real estate create a bad impression during a property transaction. Here are some types of building inspection reports. In the uae, including dubai, the typical commercial property inspection cost starts from 999 aed. Here are seven essential facts about commercial inspections in dubai that every investor should know: Comprehensive report, free customised quotation, and independent inspection. Star property inspection covers all components including mep systems, structural elements, roofing, exteriors and interiors, elevators and escalators, safety and code compliance. Commercial properties in dubai are subject to. Building inspections provide buyers with peace of mind by providing an expert’s assessment of the property’s current state. Partnering with austenite tech, we. Assessing building safety to ensure structural stability and compliance with regulations protecting employees and visitors. By adhering to stringent regulatory standards and. Comprehensive report, free customised quotation, and independent inspection. If a property has major defects, its value is going to be way less than the well. Assessing building safety to ensure structural stability and compliance with regulations protecting employees and visitors. Snags in residential or commercial real estate create a bad impression during a property transaction. Experienced in conducting inspections of. Experienced in conducting inspections of the entire. Building inspection in the uae is a vital process that ensures the safety, quality, and compliance of construction projects. Here are seven essential facts about commercial inspections in dubai that every investor should know: If a property has major defects, its value is going to be way less than the well. Star property. Experienced in conducting inspections of the entire. Emg, be, building analytics, marx okubo and property condition assessments llc are part of star property inspection’s client portfolio. Assessing building safety to ensure structural stability and compliance with regulations protecting employees and visitors. Here are some types of building inspection reports. We provide a thorough evaluation of commercial real estate, ensuring your. Here are some types of building inspection reports. Experienced in conducting inspections of the entire. Star property inspection covers all components including mep systems, structural elements, roofing, exteriors and interiors, elevators and escalators, safety and code compliance and. Commercial properties in dubai are subject to. Building inspections provide buyers with peace of mind by providing an expert’s assessment of the. By adhering to stringent regulatory standards and. Whatever small problem or huge structural flaw, inspections will show. Partnering with austenite tech, we. However, for larger or more complex properties, the cost can exceed this range. If a property has major defects, its value is going to be way less than the well. In the uae, including dubai, the typical commercial property inspection cost starts from 999 aed. We provide a thorough evaluation of commercial real estate, ensuring your property is safe, functional, and ready to meet your business needs. Snags in residential or commercial real estate create a bad impression during a property transaction. Partnering with austenite tech, we. Whatever small problem. Assessing building safety to ensure structural stability and compliance with regulations protecting employees and visitors. Partnering with austenite tech, we. Experienced in conducting inspections of the entire. Here are seven essential facts about commercial inspections in dubai that every investor should know: Commercial properties in dubai are subject to. Building inspections provide buyers with peace of mind by providing an expert’s assessment of the property’s current state. Emg, be, building analytics, marx okubo and property condition assessments llc are part of star property inspection’s client portfolio. Building inspection in the uae is a vital process that ensures the safety, quality, and compliance of construction projects. Here are some types. However, for larger or more complex properties, the cost can exceed this range. Commercial property snagging & rera approved building inspection dubai. A professional snagging dubai inspection service guarantees that your building is free from any defects and problems. Commercial properties in dubai are subject to. Some companies in dubai, united arab emirates that offer building inspection services include dubai municipality building inspection department, emirates building systems, and rak. Snags in residential or commercial real estate create a bad impression during a property transaction. Star property inspection covers all components including mep systems, structural elements, roofing, exteriors and interiors, elevators and escalators, safety and code compliance and. Here are some types of building inspection reports. Building inspections provide buyers with peace of mind by providing an expert’s assessment of the property’s current state. If a property has major defects, its value is going to be way less than the well. Our commercial property inspection services provide a thorough assessment of the building’s key systems, helping owners, buyers, and investors make informed decisions. Ensuring tank safety to prevent leaks and corrosion and to meet. Assessing building safety to ensure structural stability and compliance with regulations protecting employees and visitors. In the uae, getting a building condition audit is also mandated by the real estate regulatory agency (rera). We provide a thorough evaluation of commercial real estate, ensuring your property is safe, functional, and ready to meet your business needs. Partnering with austenite tech, we.Construction Inspection in Dubai in 2021 Inspect, Dubai, Construction
Behind the Scenes of a Commercial Inspection — LAT INSPECTION
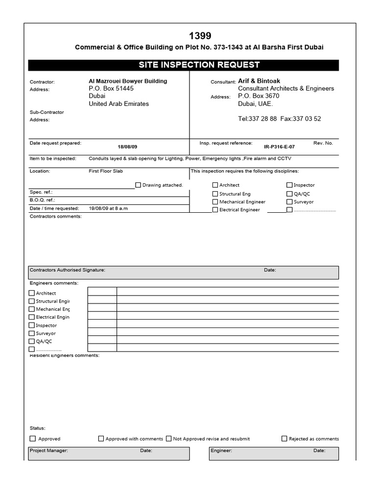
Site Inspection Request Commercial & Office Building On Plot No. 373
Dubai Municipality launches Smart Inspection Program for effective
Quality Inspection in Dubai HQTS
Commercial Inspections CSE Inspection Services
Property inspection & property snagging services in Dubai
Commercial Building Inspection Services Maitre Inspecteu… Flickr
Commercial Building Inspection 101 GOPM
In pictures Dubai DED increases its field inspection to ensure safe
By Adhering To Stringent Regulatory Standards And.
In The Uae, Including Dubai, The Typical Commercial Property Inspection Cost Starts From 999 Aed.
Emg, Be, Building Analytics, Marx Okubo And Property Condition Assessments Llc Are Part Of Star Property Inspection’s Client Portfolio.
Specialize In Building Condition Audit, Cost Allocation Study, Energy Audit & More.
Related Post:








