Department Of Building Safety Colorado
Department Of Building Safety Colorado - Building permits must be submitted to the city for review for zoning. Colorado.gov connect with state of colorado government services & help. The information below will assist in applying for a permit,. Review our building permit application, fees and payments. 211 colorado a confidential and multilingual service to access vital resources across the state. Visit aurora4biz.org, email permitcounter@auroragov.org or call 303.739.7420 to take care of business online or by phone for any building code and construction service.< The colorado department of local affairs (dola) offers a comprehensive overview of building permit requirements, allowing applicants to understand necessary. Our mission is to have engaged employees, working together, to safeguard the public and deliver diverse public safety services. Building codes are primarily adopted and enforced at the local level except where noted below: The bill adds the following members to the board: Statewide building codes—and adequate enforcement of codes—play a vital role in public safety and loss prevention. Colorado department of public safety division of fire prevention and control (dfpc) the dfpc adopts and promulgates codes as minimum standards for the construction and maintenance of. The building safety division is entrusted with achieving compliance with applicable state laws and adopted building codes in regards to building design and construction within unincorporated. The colorado department of local affairs (dola) offers a comprehensive overview of building permit requirements, allowing applicants to understand necessary. Colorado.gov connect with state of colorado government services & help. Medride jeopardized the public health, safety and welfare of colorado medicaid members by not complying with state and federal regulations. You’ll need all the following to submit a successful plan for review in the division of building safety category, whether residential or commercial. The information below will assist in applying for a permit,. Permit applications & adopted codes. Cdps employees are dedicated to a safer colorado. One additional municipal representative representing rural. Colorado department of public safety division of fire prevention and control (dfpc) the dfpc adopts and promulgates codes as minimum standards for the construction and maintenance of. Local governments may still limit residential occupancy based on “demonstrated health and safety standards,” such as the international building code, fire code, colorado. Salida contracts with chaffee. 211 colorado a confidential and multilingual service to access vital resources across the state. Local governments may still limit residential occupancy based on “demonstrated health and safety standards,” such as the international building code, fire code, colorado. 211 colorado a confidential and multilingual service to access vital resources across the state. Colorado.gov connect with state of colorado government services &. Colorado has no statewide building code; Colorado.gov connect with state of colorado government services & help. 211 colorado a confidential and multilingual service to access vital resources across the state. The building safety division is entrusted with achieving compliance with applicable state laws and adopted building codes in regards to building design and construction within unincorporated. Building permits must be. The bill that will be introduced today focuses on building affordable condos right the first time, according to sponsors. The bill adds the following members to the board: You’ll need all the following to submit a successful plan for review in the division of building safety category, whether residential or commercial. Building codes are primarily adopted and enforced at the. Visit aurora4biz.org, email permitcounter@auroragov.org or call 303.739.7420 to take care of business online or by phone for any building code and construction service.< You’ll need all the following to submit a successful plan for review in the division of building safety category, whether residential or commercial. Cdps employees are dedicated to a safer colorado. The bill that will be introduced. The colorado department of local affairs provides comprehensive building codes and safety regulations that can be accessed on their official website. Visit aurora4biz.org, email permitcounter@auroragov.org or call 303.739.7420 to take care of business online or by phone for any building code and construction service.< Colorado has no statewide building code; Beginning january 1, 2026, the bill requires a local government. Colorado has no statewide building code; They can reduce the need for public disaster aid and increase a. The bill makes changes to the existing wildfire resiliency code board (board). The bill that will be introduced today focuses on building affordable condos right the first time, according to sponsors. Colorado department of public safety division of fire prevention and control. 211 colorado a confidential and multilingual service to access vital resources across the state. The bill adds the following members to the board: Colorado.gov connect with state of colorado government services & help. Building codes are primarily adopted and enforced at the local level except where noted below: These rules and regulations apply to all buildings and life safety systems. The building department follows the guidelines as provided by the colorado chapter of the icc and are based on the 2018 icc code required by the city of trinidad. They can reduce the need for public disaster aid and increase a. Medride jeopardized the public health, safety and welfare of colorado medicaid members by not complying with state and federal. The bill that will be introduced today focuses on building affordable condos right the first time, according to sponsors. Our mission is to have engaged employees, working together, to safeguard the public and deliver diverse public safety services. Commerce city issues building permits for new and alterations to existing commercial and residential buildings and structures. The bill makes changes to. City of lafayette, colorado, issues building permits for commercial and homeowners. Beginning january 1, 2026, the bill requires a local government that adopts or substantially amends a building code to ensure that the building code meets or exceeds the accessibility. One additional municipal representative representing rural. The information below will assist in applying for a permit,. The building safety division is entrusted with achieving compliance with applicable state laws and adopted building codes in regards to building design and construction within unincorporated. 211 colorado a confidential and multilingual service to access vital resources across the state. They can reduce the need for public disaster aid and increase a. Cdps employees are dedicated to a safer colorado. The bill adds the following members to the board: The colorado department of local affairs provides comprehensive building codes and safety regulations that can be accessed on their official website. Permit applications & adopted codes. Colorado department of public safety division of fire prevention and control (dfpc) the dfpc adopts and promulgates codes as minimum standards for the construction and maintenance of. Visit aurora4biz.org, email permitcounter@auroragov.org or call 303.739.7420 to take care of business online or by phone for any building code and construction service.< Colorado.gov connect with state of colorado government services & help. Colorado.gov connect with state of colorado government services & help. These rules and regulations apply to all buildings and life safety systems subject to the oversight of the colorado department of public safety, division of fire prevention and control and.Division Of Building Safety
Orange County Division of Building Safety 2019 Building Safety Month
Code Compliance Rebrands Itself as the Department of Building Safety
Manufactured Home Building Permit Application County Of Tehama
Fire Safety Measures Every Building Should Have Service Master
News Flash • Department of Building Safety
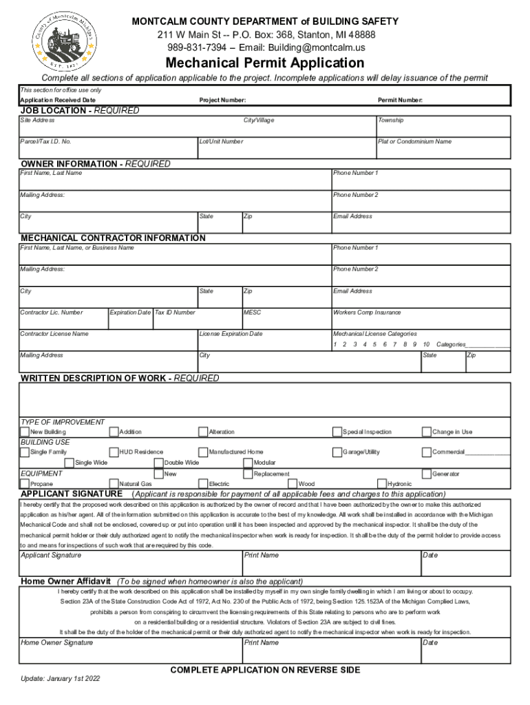
Montcalm County Department of Building Safety Montcalm Org Fill Out
The State of Safety in Colorado SafeWise
4th Annual Colorado Damage Prevention Safety Summit 2018 CO811
News Flash • Glens Falls • CivicEngage
Review Our Building Permit Application, Fees And Payments.
Colorado Has No Statewide Building Code;
You’ll Need All The Following To Submit A Successful Plan For Review In The Division Of Building Safety Category, Whether Residential Or Commercial.
Local Governments May Still Limit Residential Occupancy Based On “Demonstrated Health And Safety Standards,” Such As The International Building Code, Fire Code, Colorado.
Related Post:






