Dormitory Building Floor Plan
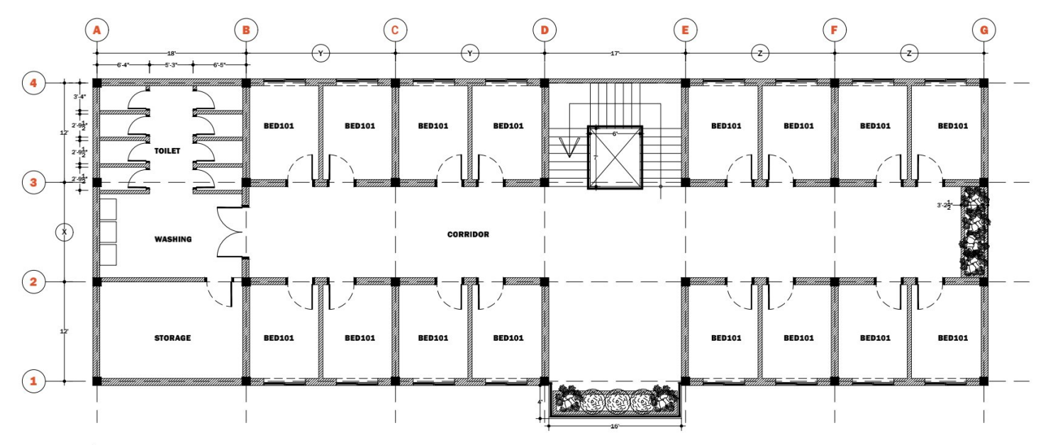
Dormitory Building Floor Plan - Great starting point for your next campaign. In today's era of compact living and. 5, allowing construction to begin this spring. The building has dimensions of approximately 36m x 17.8m x 8.5m tall. This document provides a design concept for a 3 storey dormitory building with the following details: Look for features such as secure locks, fire sprinklers, and emergency exits. Key elements to consider include shared spaces, individual rooms, and communal facilities. Also, consider the security protocols of. Now for rental rates and other information about this property. Browse modular dormitory building floor plans and put our experience to work for you! The ground floor plan shows an entrance, kitchen, dining area, and two dormitories separated for males and females. This document provides a design concept for a 3 storey dormitory building with the following details: The medford community development board approved tufts’ proposed new dorm at 401 boston ave. Choose a dorm floor plan that meets your safety standards. When choosing a student dormitory, the floor plan is an important consideration. Look for features such as secure locks, fire sprinklers, and emergency exits. Several essential aspects must be considered to. Also, consider the security protocols of. The layout of the dorm, the size of the rooms, and the amenities available can all impact your. The building has dimensions of approximately 36m x 17.8m x 8.5m tall. The layout of the dorm, the size of the rooms, and the amenities available can all impact your. Browse modular dormitory building floor plans and put our experience to work for you! See photos, floor plans and more details about 4407 n wolcott ave unit cl#a3 in chicago, illinois. Key elements to consider include shared spaces, individual rooms, and communal. Now for rental rates and other information about this property. Let’s dive into some essential tips for crafting an effective dormitory floor plan. The dorm will be a. The ground floor plan shows an entrance, kitchen, dining area, and two dormitories separated for males and females. The medford community development board approved tufts’ proposed new dorm at 401 boston ave. Discover our dormitory template, designed to address the evolving needs of interior designers and architects focused on communal living spaces. Let’s dive into some essential tips for crafting an effective dormitory floor plan. Check out photos and floor plans. In today's era of compact living and. Several essential aspects must be considered to. See more ideas about floor plans, student house, hostels design. Now for rental rates and other information about this property. Choose a dorm floor plan that meets your safety standards. It should cater to their needs, foster a. The building has dimensions of approximately 36m x 17.8m x 8.5m tall. In today's era of compact living and. Discover our dormitory template, designed to address the evolving needs of interior designers and architects focused on communal living spaces. Also, consider the security protocols of. The ground floor plan shows an entrance, kitchen, dining area, and two dormitories separated for males and females. See photos, floor plans and more details about 4407. When choosing a student dormitory, the floor plan is an important consideration. Also, consider the security protocols of. Now for rental rates and other information about this property. The next phase will be for the framers to build the first floor (the basement ceiling) which will allow jim to start stacking the icf blocks (the legos!) building the first floor. See more ideas about floor plans, student house, hostels design. Look for features such as secure locks, fire sprinklers, and emergency exits. 5, allowing construction to begin this spring. See photos, floor plans and more details about 4407 n wolcott ave unit cl#a3 in chicago, illinois. The medford community development board approved tufts’ proposed new dorm at 401 boston ave. 5, allowing construction to begin this spring. The dorm will be a. The document contains plans for the proposed construction of a dormitory block including: Great starting point for your next campaign. Choose a dorm floor plan that meets your safety standards. The next phase will be for the framers to build the first floor (the basement ceiling) which will allow jim to start stacking the icf blocks (the legos!) building the first floor walls. Let’s dive into some essential tips for crafting an effective dormitory floor plan. The ground floor plan shows sections a through d, with rooms labeled w for. The building has dimensions of approximately 36m x 17.8m x 8.5m tall. Affordable structures is based in central florida and specializes in modular classrooms, commercial. The document contains plans for the proposed construction of a dormitory block including: This document provides a design concept for a 3 storey dormitory building with the following details: The ground floor plan shows sections. In today's era of compact living and. Check out photos and floor plans. Let’s dive into some essential tips for crafting an effective dormitory floor plan. Now for rental rates and other information about this property. When choosing a student dormitory, the floor plan is an important consideration. Discover our dormitory template, designed to address the evolving needs of interior designers and architects focused on communal living spaces. The document contains floor plans for a dormitory building with two levels. 5, allowing construction to begin this spring. Great starting point for your next campaign. Key elements to consider include shared spaces, individual rooms, and communal facilities. Browse modular dormitory building floor plans and put our experience to work for you! See more ideas about floor plans, student house, hostels design. It should cater to their needs, foster a. See photos, floor plans and more details about 4407 n wolcott ave unit cl#a3 in chicago, illinois. The ground floor plan shows sections a through d, with rooms labeled w for bedrooms and d for bathrooms. Several essential aspects must be considered to.Oakland University’s Hillcrest Hall is the Future of Campus Dorms
Design a 4storied dormitory building The typical
30 Dorm Room Organization Ideas Dorm room layouts, Dorm layout, Dorm
Dormitory Floor Plan Design Viewfloor.co
Student Housing and Dorms University of St. Thomas Houston, TX
Dormitory Floor Plan With Plumbing Drawing DWG File Cadbull
Dormitory Floor Plan With Construction Drawing Download DWG File Cadbull
Pin by K&KR on Plans Hostels design, Dorm room layouts, Hostel room
Dormitory Floor Plan Floor Plan Template
School Dormitory Floor Plan Viewfloor.co
The Building Has Dimensions Of Approximately 36M X 17.8M X 8.5M Tall.
Also, Consider The Security Protocols Of.
The Ground Floor Plan Shows An Entrance, Kitchen, Dining Area, And Two Dormitories Separated For Males And Females.
The Layout Of The Dorm, The Size Of The Rooms, And The Amenities Available Can All Impact Your.
Related Post:





_1.gif)