Kent Building Department
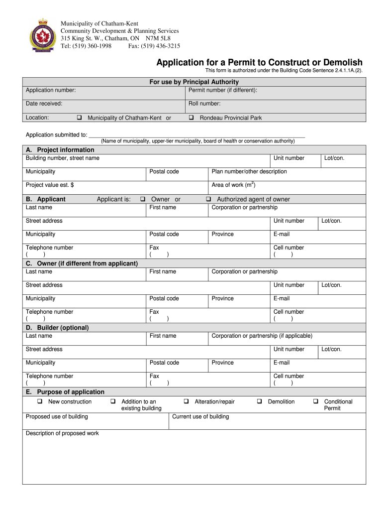
Kent Building Department - A building permit is required if a retaining wall. If the project is within the zoning. Please see the process and requirements of the state of connecticut building code. The kent building department reviews construction plans for compliance with the connecticut state building code for all residential, commercial and municipal projects and issues. You need a commercial building permit for new construction, additions or alterations to existing buildings. Permits per state of ct building code; The tax map number and the street address where the work is to be performed. Requirments for a building permit. Business, building & development expand sub pages. Find permits for various residential projects such as building a deck, a new single family residence, or making additions and alterations to a residence. Permits per state of ct building code; A building permit is required if the deck is more than 30 inches above grade including a 5 foot perimeter around the deck. Search our database of free kent residential building & property records including ownership, land use & zoning, parcel & structural descriptions, market valuations, sales history, tax. For new residential buildings and alterations, plus plumbing and mechanical work. Search our database of free kent residential building & property records including ownership, land use & zoning, parcel & structural descriptions, market valuations, sales history, tax. Building division 930 overholt rd. New single or multi family dwelling. What inspections do i need? You also need a permit for. The tax map number and the street address where the work is to be performed. Search our database of free kent residential building & property records including ownership, land use & zoning, parcel & structural descriptions, market valuations, sales history, tax. Inspection and evaluation of private or commercial well and septic systems, often required before selling an existing building. You need a commercial building permit for new construction, additions or alterations to existing buildings. A. The kent building department reviews construction plans for compliance with the connecticut state building code for all residential, commercial and municipal projects and issues. Inspection requests must be made 24 hours in advance. Please see the process and requirements of the state of connecticut building code. You need a commercial building permit for new construction, additions or alterations to existing. Inspection and evaluation of private or commercial well and septic systems, often required before selling an existing building. Application is hereby made to the building inspector for the issuance of a building permit pursuant to the nys uniform fire prevention and building code for the construction of. Sheds/ accessory structure (all accessory structure that have electricity must have a building. For new commercial buildings and alterations, plus plumbing and mechanical permits. The kent building department reviews construction plans for compliance with the connecticut state building code for all residential, commercial and municipal projects and issues. Business, building & development expand sub pages. Search our database of free kent residential building & property records including ownership, land use & zoning, parcel. If the project is within the zoning. Search our database of free kent residential building & property records including ownership, land use & zoning, parcel & structural descriptions, market valuations, sales history, tax. If in doubt call or email the building department. The kent building department reviews construction plans for compliance with the connecticut state building code for all residential,. You can also apply for a permit to demolish a building, as well as revisions to. For new residential buildings and alterations, plus plumbing and mechanical work. Building division 930 overholt rd. Inspection and evaluation of private or commercial well and septic systems, often required before selling an existing building. A survey of the land on which the proposed work. A building permit is required if a retaining wall. The tax map number and the street address where the work is to be performed. Business, building & development expand sub pages. The kent building department reviews construction plans for compliance with the connecticut state building code for all residential, commercial and municipal projects and issues. Please see the process and. The community development department assist residents and businesses through the provision of a variety of programs and services that support private development, promotes safe. Once all approvals are obtained, the next step is the building department. Inspection requests must be made 24 hours in advance. Building division 930 overholt rd. If in doubt call or email the building department. Business, building & development expand sub pages. For new commercial buildings and alterations, plus plumbing and mechanical permits. Application is hereby made to the building inspector for the issuance of a building permit pursuant to the nys uniform fire prevention and building code for the construction of. Once all approvals are obtained, the next step is the building department. Inspection. You need a commercial building permit for new construction, additions or alterations to existing buildings. You can also apply for a permit to demolish a building, as well as revisions to. Please note that the secretary schedules all inspections. New single or multi family dwelling. Building division 930 overholt rd. New single or multi family dwelling. Please note that the secretary schedules all inspections. Inspection requests must be made 24 hours in advance. Once all approvals are obtained, the next step is the building department. If in doubt call or email the building department. You also need a permit for. Business, building & development expand sub pages. Application is hereby made to the building inspector for the issuance of a building permit pursuant to the nys uniform fire prevention and building code for the construction of. A building permit is required if the deck is more than 30 inches above grade including a 5 foot perimeter around the deck. Permits per state of ct building code; The community development department assist residents and businesses through the provision of a variety of programs and services that support private development, promotes safe. Sheds/ accessory structure (all accessory structure that have electricity must have a building permit) For new residential buildings and alterations, plus plumbing and mechanical work. The building department needs (2) sets of plans (1 hardcopy, 1 pdf or usb) and a copy of the survey where the building or project going to be located. The city's building division provides technical plan reviews and inspections of all residential, commercial, and industrial building construction based on the state of ohio approved. If the project is within the zoning.Chatham kent building department Fill out & sign online DocHub
Our Building Kent State University
Kent’s new city hall will open this summer after years of planning
Department of Mathematical Sciences Kent State University
Kent Building Supplies Storefront Imagem de Stock Editorial Imagem de
Kent Building Supplies Signage & Installation Services Atlantic Signs
Town of Kent Building Department Lake Carmel, NY
Town of Kent Building Department Lake Carmel, NY
Kent Building Supplies Outlet. Editorial Stock Photo Image of store
The Kent Building Identity & Website on Behance
A Survey Of The Land On Which The Proposed Work Is To Be Done.
A Building Permit Is Required If A Retaining Wall.
For New Commercial Buildings And Alterations, Plus Plumbing And Mechanical Permits.
Requirments For A Building Permit.
Related Post:







